Deine Ideen, dein Raum, dein Stil. Entdecke die Freiheit des Gestaltens mit innovativen Modulsystemen.



Ein moderner Ansatz in der Baubranche, der sich wegen seiner vielen Vorteile in den letzten Jahren an zunehmender Beliebtheit erfreut. Egal ob Gesundheitseinrichtung, kreativer Workspace oder gemütliches Nest – schaffe Räume nach deinen Regeln.

Das passende für jeden Anspruch

Wohnhäuser
Modulare Wohnhäuser sind in verschiedenen Stilen und Größen möglich. Von den kostengünstigen Tiny Homes bis hin zu Mehrgenerationenhäusern – alles ist möglich!

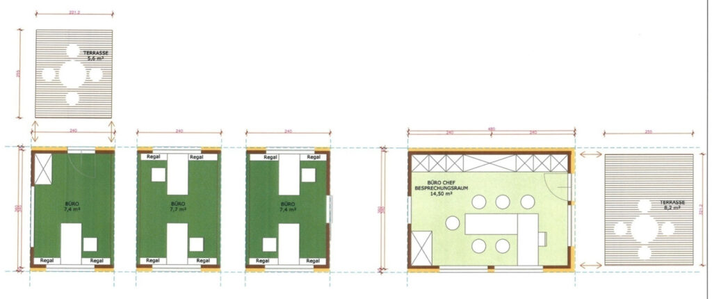
Bürogebäude
Viele Unternehmen können mit modularen Konstruktionen schnell Bürofläche schaffen, die den Anforderungen genau entspricht – egal ob als shared Workspace, Großraumbüro oder einzelne Arbeitsräume.

Hotels & Unterkünfte
In der Hotelbranche können solche Einheiten sehr schnell die Hotelfläche erweitern. Ganz egal ob es darum geht mehr Schlafplätze zu schaffen, einen Spa Bereich dazu zu bauen oder die Restaurantfläche zu erweitern.

Schulen und Bildungseinrichtungen
Schulen können modulare Klassenräume oder ganze Schulgebäude verwenden, um auf die Bedürfnisse wachsender Schülerzahlen zu reagieren.

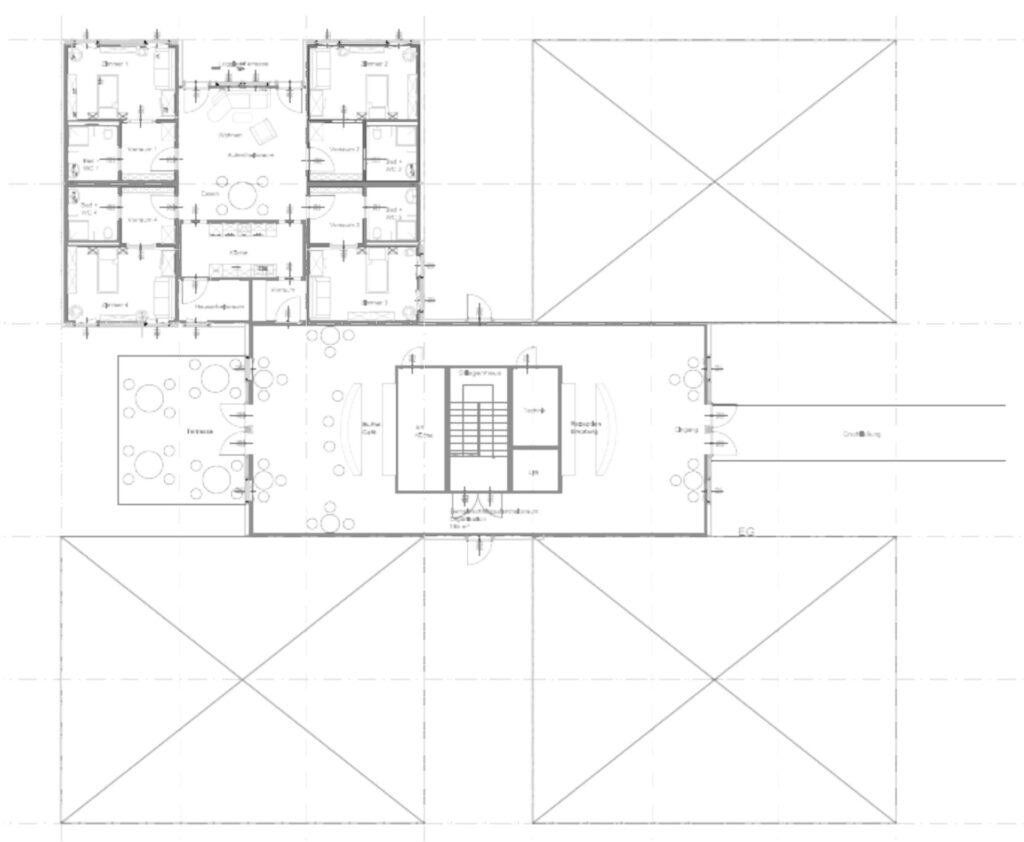
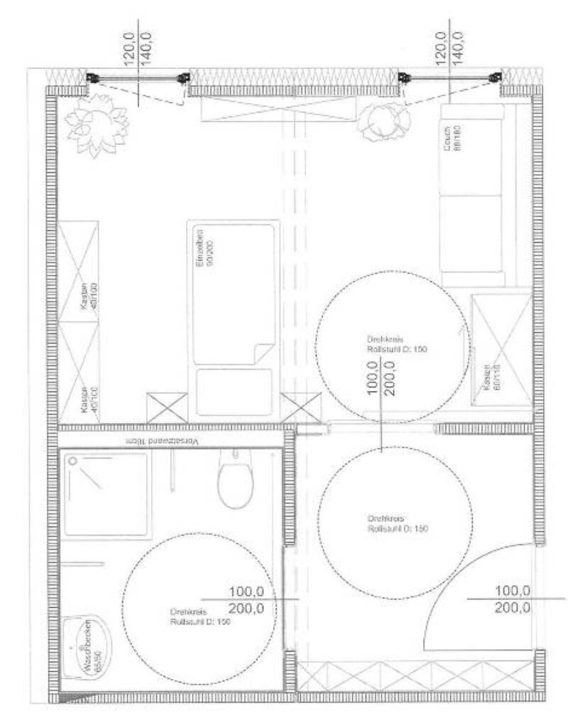
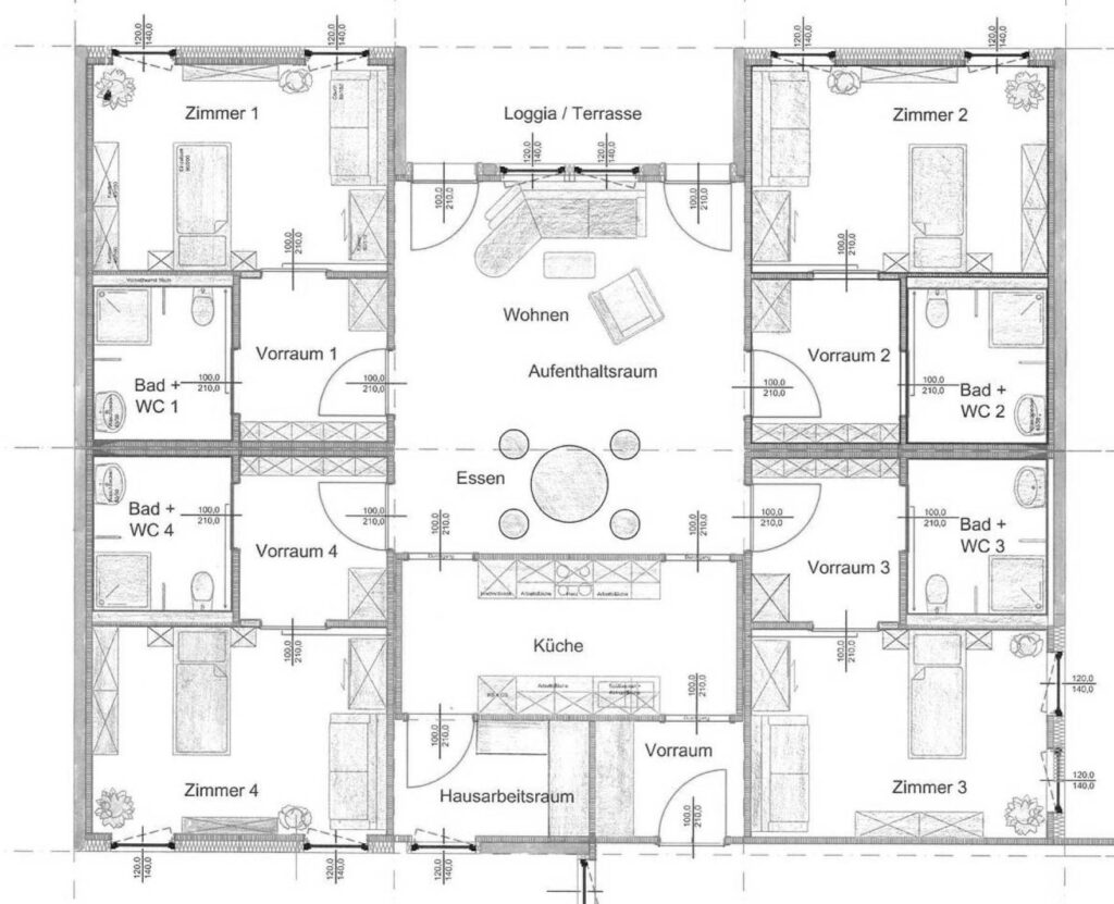
Gesundheitseinrichtungen
Krankenhäuser, Pflegeheime oder Altersresidenzen können modulare Konstruktionen nutzen, um zusätzliche Kapazitäten bereitzustellen.

Mehrzweckgebäude
Entweder als schnell gebautes Lager, Garagen oder als schnell errichtete Gebäude für temporäre Veranstaltungen und Events.





























